문의전화 031-278-1285 / 문자상담 010-4904-4024
HOME
ADMIN
BOOKMARK
회사소개
급식운영시스템
위탁급식
이동급식
상담문의
인사말
회사개요
사업분야
급식운영 시스템 개요
맛,메뉴 기본에 충실
식자재 공급시스템
위생관리 시스템
잔반관리 시스템
위기관리 시스템
고객관리 시스템
전문조리사 지원
직원교육 시스템
학원급식관리 시스템 지원
위탁급식이란
위탁급식의 개요
고객사 니즈분석 및 적용
메뉴운영계획
주간식단표
미니뷔페제공
특별행사지원
계절별/절기별 이벤트식제공
이벤트식제공
플러스코너운영
팀단위 회식지원
신메뉴품평회
자녀와함께하는 프로그램
개인전용식기
VIP전용 세팅장비
조리실 조리기구지원
비용부담
이동급식이란
이동급식 FLOW
A형 식단표
B형 식단표
특식제공
구내식당 집기 및 기물지원
순환급식관리
정기식단 도시락
실속도시락
고급도시락
스페셜도시락
VIP도시락
기업행사
소수인원
다과파티
결혼피로연
홈파티
바베큐파티
생맥주
부대품목
온라인 문의
포토갤러리
공지사항
고객센터
온라인문의
포토갤러리
공지사항
포토갤러리 /
PHOTO GALLERY
제목
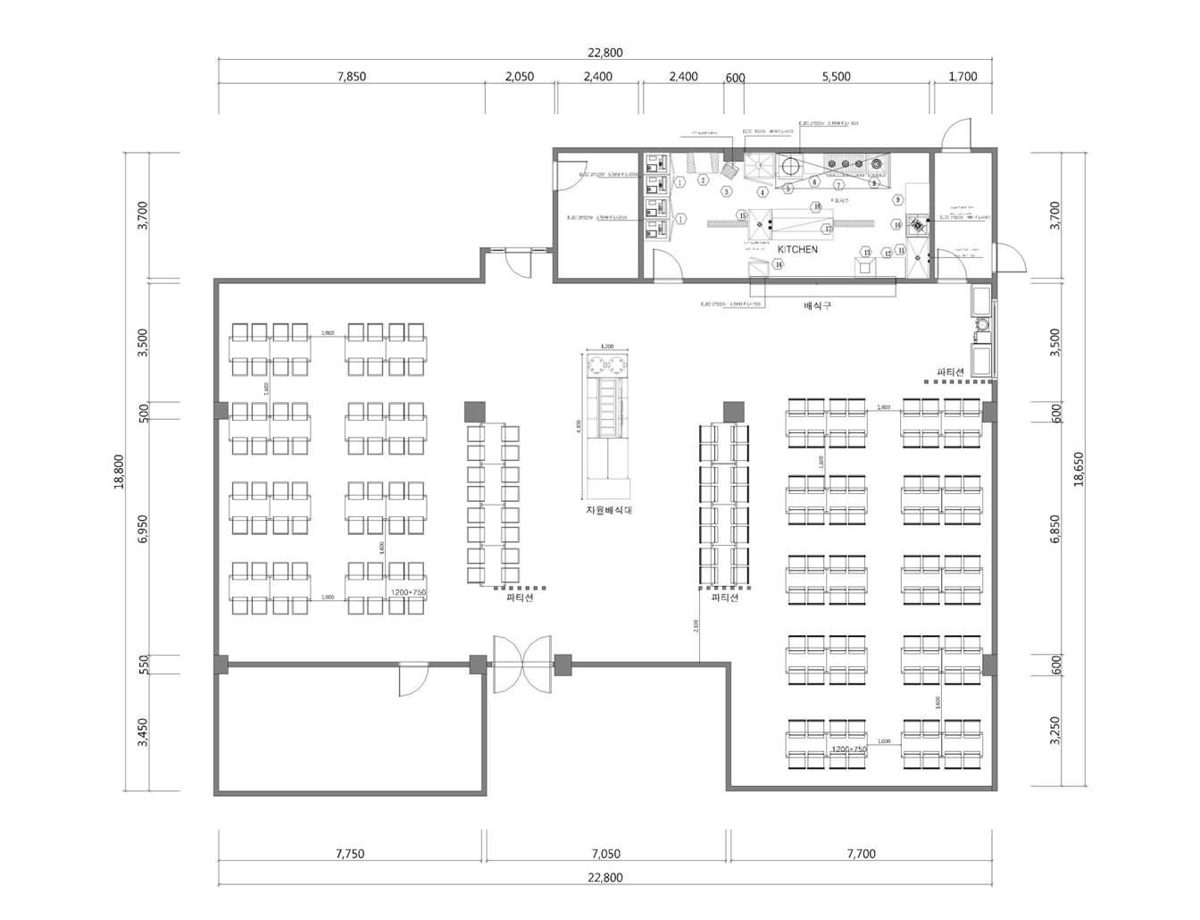
위탁급식사업장 도면
작성자
관리자
작성일자
2018-06-27 21:09:22
첨부파일1
위탁급식사업장 배치도.jpg
(89420 Byte)
위탁급식사업장 도면
니즈푸드 / 사업자번호 426-87-00810 / 경기도 화성시 정남면 괘량1길 42-24 니즈푸드
문의전화 031-278-1285 / 문자상담 010-4904-4024
Copyright (C) NEEDSFOOD All Rights Reserved